瀝青夾套保溫磁性過濾器設計規范
2022-02-21 09:44:50
72
【瀝青夾套保溫磁性過濾器設計規范說明】
一種瀝青夾套保溫磁性過濾器技術領域
本實用新型涉及一種過濾器,尤其涉及一種瀝青夾套保溫磁性過濾器。保溫閥門具有良好的保溫保冷特性,且閥門的通徑與管徑一致,同時又能有效降低管路中介質熱量損失。具有良好的保溫保冷特性,同時又能有效降低管路中介質熱量損失。保溫閥門在石油、化工、冶金、制藥等各類系統中得到較多應用,有效降低管路中介質熱量的損失,防止介質結晶、凝固等相象的出現。保溫閥門的作用是在溫度高或低的情況下通過閥門時,保溫閥門內的物質對介質產生保溫效果,使介質不會凝結或粘在閥體內部,讓閥門的啟閉能正常運作。,
,【瀝青夾套保溫磁性過濾器設計規范背景技術】目前,我國高速公路的表面層普遍采用SBS改性瀝青,SBS改性瀝青是以基質瀝青為原料,加入一定比例的SBS改性劑,通過剪切、攪拌等方式使SBS均勻的分散于瀝青中,利用SBS良好的物理性能對瀝青做改性處理。SBS改性劑是一種白色、顆粒狀高分子聚合物,在瀝青管道中流動會被一般常用的過濾器過濾掉,造成原料的浪費及生產的改性瀝青指標達不到技術要求。當含有磁性雜質的液體流經過濾器時,磁性物質受強力磁棒的磁性作用下,被吸附于磁棒的管套上。,

膠體磨是生產改性瀝青的核心部件,通過對膠體磨動磨盤與靜磨盤之間的間隙進行調整,使SBS改性劑顆粒的細度達到一定要求。通常在安裝瀝青管道時會有金屬雜物(主要是鐵雜質)帶入管道,一般常用的過濾器過濾不了流體中的鐵雜質,鐵雜質進入膠體磨腔內,對高速運轉的動磨盤及靜磨盤造成很大的破壞,給業主帶來一定的經濟損失。
【瀝青夾套保溫磁性過濾器設計規范實用新型內容】
本實用新型要解決的技術問題是克服現有技術的缺陷,提供一種瀝青夾套保溫磁性過濾器,能夠清除流體中的可磁性金屬雜質,提高工作效率。,

為了解決上述技術問題,本實用新型提供了如下的技術方案:
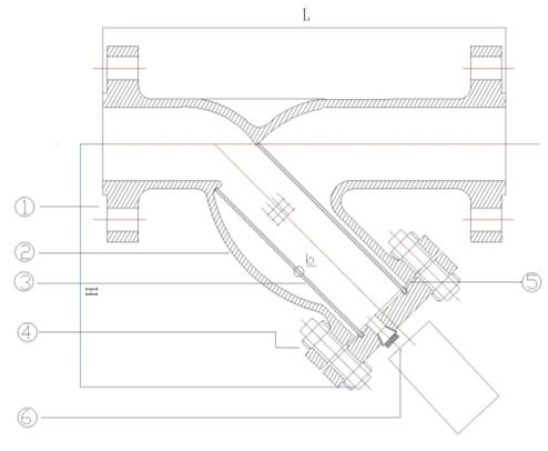
本實用新型一種瀝青夾套保溫磁性過濾器,其包括殼體,所述殼體的側部設置有介質進口和介質出口,所述殼體內設置有過濾裝置,所述介質進口和所述介質出口均與所述過濾裝置連通;所述過濾裝置內設置有磁鐵塊。
進一步地,所述殼體內設置有過濾裝置安裝槽,所述過濾裝置安裝槽垂直焊接在殼體內側且與所述介質進口垂直布置;所述過濾裝置安裝在所述過濾裝置安裝槽上。進一步地,所述過濾裝置包括支架,所述支架上固定有濾網,所述支架底部設置有籃式過濾篩;所述磁鐵塊設置在所述籃式過濾篩內。進一步地,所述殼體外部焊接有夾套殼體,所述夾套殼體一側設有加熱介質進口,所述夾套殼體的另一側設有加熱介質出口。進一步地,所述介質進口與介質出口相對設置且位于同一水平線上。 進一步地,所述加熱介質進口與所述介質進口位于兩個相互垂直的平面上。進一步地,所述殼體頂部設置有法蘭,所述法蘭和法蘭蓋通過緊固件連接。,

瀝青夾套保溫磁性過濾器設計規范本實用新型所達到的有益效果是:
本實用新型結構緊湊,過濾能力強,維護方便,不宜造成堵塞現象,通過在過濾裝置內設置磁鐵塊,能夠有效的清除可磁性金屬雜質,提高了工作效率。
工作原理:在液體改性瀝青輸送過程中,液體改性瀝青為被加熱介質,當被加熱介質經過本實用新型瀝青夾套保溫磁性過濾器時,受強力磁塊的磁性作用,被加熱介質中的鐵雜質將被吸附在磁塊上,大大降低了被加熱介質中的可磁性雜質(主要是鐵雜質),保證了下一道工序的膠體磨的動靜磨盤不受損壞。
本實用新型結構緊湊,過濾能力強,維護方便,不宜造成堵塞現象,通過在過濾裝置內設置磁鐵塊,能夠有效的清除可磁性金屬雜質,提高了工作效率。
后應說明的是:以上僅為本實用新型的優選實施例而已,并不用于限制本實用新型,盡管參照前述實施例對本實用新型進行了詳細的說明,對于本領域的技術人員來說,其依然可以對前述各實施例所記載的技術方案進行修改,或者對其中部分技術特征進行等同替換。凡在本實用新型的精神和原則之內,所作的任何修改、等同替換、改進等,均應包含在本實用新型的保護范圍之內。,

【瀝青夾套保溫磁性過濾器設計規范權項】
1.一種瀝青夾套保溫磁性過濾器,其特征在于,包括殼體,所述殼體的側部設置有介質進口和介質出口,所述殼體內設置有過濾裝置,所述介質進口和所述介質出口均與所述過濾裝置連通;所述過濾裝置內設置有磁鐵塊。,2.根據權利要求1所述的一種瀝青夾套保溫磁性過濾器,其特征在于,所述殼體內設置有過濾裝置安裝槽,所述過濾裝置安裝槽垂直焊接在殼體內側且與所述介質進口垂直布置;所述過濾裝置安裝在所述過濾裝置安裝槽上。,3.根據權利要求1或2所述的一種瀝青夾套保溫磁性過濾器,其特征在于,所述過濾裝置包括支架,所述支架上固定有濾網,所述支架底部設置有籃式過濾篩;所述磁鐵塊設置在所述籃式過濾篩內。,4.根據權利要求1所述的一種瀝青夾套保溫磁性過濾器,其特征在于,所述殼體外部焊接有夾套殼體,所述夾套殼體一側設有加熱介質進口,所述夾套殼體的另一側設有加熱介質出口。,5.根據權利要求1所述的一種瀝青夾套保溫磁性過濾器,其特征在于,所述介質進口與介質出口相對設置且位于同一水平線上。,6.根據權利要求4所述的一種瀝青夾套保溫磁性過濾器,其特征在于,所述加熱介質進口與所述介質進口位于兩個相互垂直的平面上。,7.根據權利要求1所述的一種瀝青夾套保溫磁性過濾器,其特征在于,所述殼體頂部設置有法蘭,所述法蘭和法蘭蓋通過緊固件連接。